Мы используем куки-файлы. Соглашение об использовании
Помещение свободного назначения, 4 100 м²
Площадь4 100 м²
Этаж1 из 3
ПомещениеСвободно
Отчёт о привлекательности объектаУзнайте, насколько помещение и район подходят для вашего бизнеса
Что входит в отчёт
  • Охват населения
  • Пешеходный трафик
  • Автомобильный трафик
  • Средний бюджет семьи по району
  • Арендные ставки рядом
  • Точки притяжения
  • Конкуренты в радиусе 1 км
  • Рекомендации по выбору места для бизнеса
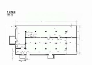
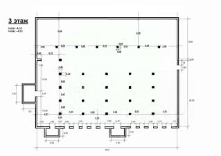
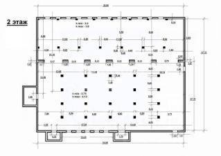
Арт. 115756029 Продается производственно-складское помещение 4100 кв.м, (все здание целиком - 3 этажа) Адрес: Московская обл., Дмитровский г.о., г. Яхрома, ул. Профессиональная, д.4. Цена: 200.000.000 рублей Коммуникации: Электричество - 50 кВт (возможно увеличение по договоренности), Отопление автономное, Вода и канализация центральные. 1й этаж - 1053 кв.м., 2й этаж - 1485 кв.м., 3й этаж - 1520 кв.м. Средняя высота потолков 4м. Цоколь 1000 кв.м., высотой 1,15 м. Слой песка можно снять и сделать полноценный этаж. Перед помещением асфальтированная площадка. Есть ворота для нулевой разгрузки. На каждом этаже 2 проема для внешнего лифта. В 2023 году в помещениях произведен капитальным ремонт. Транспортная доступность: Помещение расположено на первой линии ул. Профессиональная г. Яхрома, 2 минуты пешком от центральной части города с магазинами, банками, поликлиникой, автобусной остановкой, парком отдыха. 500м от Дмитровского шоссе (40км от МКАД). Меня зовут Виктор, я специализируюсь на коммерческой и индустриальной недвижимости. Я помогла продать и купить более 50 объектов в Московской области, помогу и Вам. Все объекты тщательно проверяются юристами и кадастровыми инженерами. Каждая сделка это вклад в репутацию, которой я дорожу! Не упустите возможность приобрести объект для своего бизнеса в Подмосковье! Напишите мне в сообщении слово "ПСН" и я вам расскажу все возможные условия по приобретению и использованию данного объекта. Добавьте объявление в избранное, чтобы не потерять! Смотрите другие наши предложения в профиле компании.
lock

Войдите или зарегистрируйтесь
для просмотра информации

Просматривайте условия сделки и всю информацию об объекте
Сохраняйте фильтры в поиске и не вводите заново
Доступ к избранному с любого устройства
Неограниченное добавление в избранное
Позвоните автору
Вам ответят на все вопросы
Остались вопросы по объявлению?
Позвоните владельцу объявления и уточните необходимую информацию.
  • Инфраструктура
  • Похожие рядом
Помощь надёжных риелторов
Риелтор партнёр Циан поможет купить или продать любую недвижимость
200 000 000 ₽
2 628 339 $
2 254 721
Цена за метр
48 781 ₽
Налог
УСН
Документы проверены
На Циан
6 лет
Объектов в работе
238